Alugar Imóvel
Comprar Imóvel
Venda de Imóvel
Contactos
Sobre nós
FAQ's
Alugar Imóvel
Comprar Imóvel
Venda de Imóvel
Contactos
Sobre nós
FAQ's
Apartamento, T2, Gondomar > Rio Tinto
Habipredilecta
-
Imóveis
-
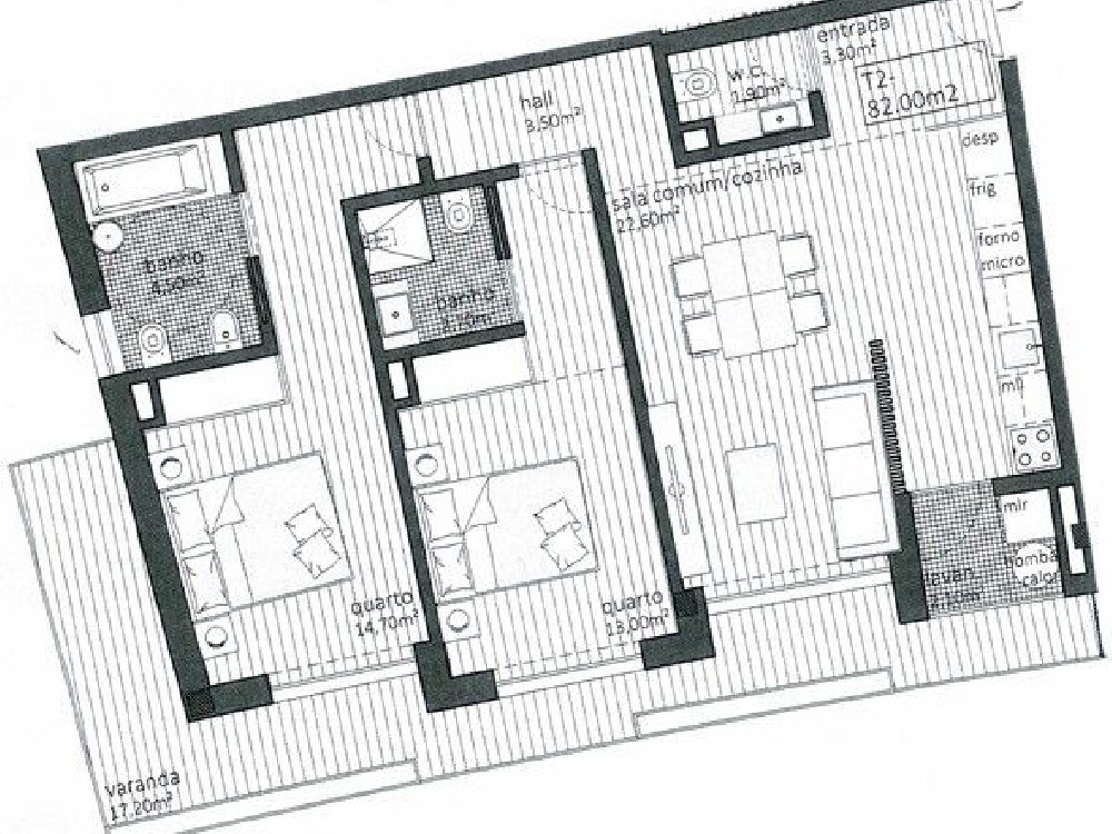
Colégio da Areosa Apartamento T2
Apartamento T2
300.000,00 €
Referência:
#4128
Negócio:
Venda
Zona:
Colégio da Areosa
Área útil:
64,80m2
Aquecimento:
Sim
Classificação Energética:
Em Curso
Características:
Quartos:
2 com 13m
2
,
Sala comum:
1 com 22.6m
2
Banho Priv.:
2 com 4.5/2.7m
2
Banho Serv.:
1 com 1.9m
2
Lavandaria:
1 com 2.10m
2
Varanda:
1 com 17.20m
2
Garagem:
1 Coletiva para 1 carro(s)
Deixe-nos o seu contacto e um Comercial entrará em contacto consigo
muito brevemente sobre este Imóvel.
Thank you! Your submission has been received!
Oops! Something went wrong while submitting the form
Porto, Paranhos
330.000,00 €
Apartamento T2
72 m2
Em Curso
1 wc
Pedrouços/ Maia
295.000,00 €
Apartamento T2
73 m2
A
1 wc
Metro Campainha/ Estação de Rio Tinto
265.000,00 €
Apartamento T2
77.44 m2
D
1 wc
Polo Universitário - Porto, Paranhos
316.900,00 €
Apartamento T2
78.60 m2
2 wc